Nom de Projet ici

Tissot 16-18

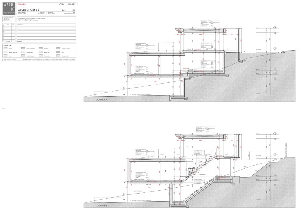
The project to transform the Tissot 16-18 building in Lausanne is a representative example of controlled urban densification, centred around a listed building. Built in 1928 by architect Charles Thévenaz and classified as a Grade 3 listed building in the architectural census of the Canton of Vaud, this bourgeois building featured 5- to 7-room apartments that had become unsuitable for the contemporary rental market. The project redefined the use of these spaces by adapting them to current standards, while creating two additional dwellings in the attic.
1231_Plan-situation_1920-x-1920_72-dpi